HOME » 中古一戸建て 船橋市新高根3丁目 U1719
中古一戸建て 船橋市新高根3丁目 U1719
「高根公団」駅徒歩9分。大手ハウスメーカー施工の4LDK。
「高根公団」駅徒歩9分。閑静な住宅街に位置します。
平成9年築、大手ハウスメーカー施工。外観からして只者ではないという雰囲気を醸し出していますよね。
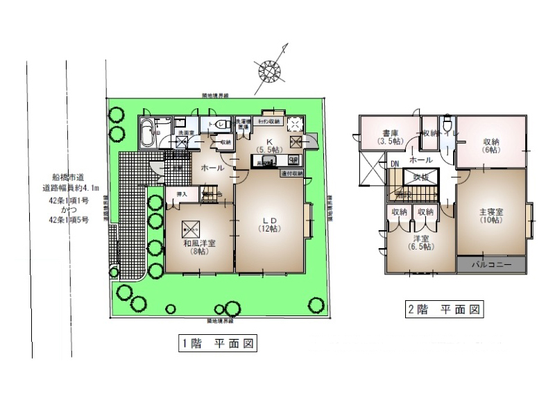
間取りはLDK17.5帖の3SLDK。隣接する和風洋室は8帖大。開放すれば25.5帖の広大な空間に。キッチン周りには造り付けの収納。こういう技がハウスメーカーならではなんですよね。そしてキッチン部に設けてある洗濯機置場。これは家事が楽そうです。
2階に目を向けますと10帖の主寝室には6帖大の収納付き。ウォークインクローゼットというよりは海外セレブのお家拝見で見かけるような1部屋まるまる衣裳部屋ってやつですね。しかもホール部分には別に3.5帖の書庫まであるんですよ。
2009年に外壁屋根塗装。その他室内もマメにリフォームを重ねております。まずは現地をご確認。お気軽にお申し付けくださいませ。
住宅ローンの利用でご購入の場合、月々のお支払い金額は、66,873円です。(借入金額2,480万円、借入期間35年、変動金利2.625%より1.9%優遇後の金利0.725%で計算。)
■エポカ高根台まで約690m、デイリーストアまで約670mです。
■冨士見幼稚園まで約870m、市立高根保育園まで約200mです。
船橋市 不動産 【家・屋】
※図面と現状が異なる場合は現状を優先します。売却済みの際はご容赦ください。
船橋市 不動産 【家・屋】
物件概要
- 所在地/船橋市新高根3丁目
- 交通/新京成線『高根公団』駅徒歩9分
- 価格/2,480万円
- 土地面積/129.66㎡(39.22坪)
- 私道面積/
- 建物面積/119.23㎡(36.06坪)
- 間取り/3SLDK
- 構造・規模/木造2階建て
- 土地権利/所有権
- 地目/宅地
- 都市計画/市街化区域
- 用途地域/第1種低層住居専用地域
- 建ぺい率/50%
- 容積率/100%
- 築年月/平成9年9月
- 現況/空家
- 引渡し時期/即可
- 接道状況/南西4.1m公道
- 設備/公営水道・都市ガス・公共下水
- 備考/
- 取引態様/媒介
- 小学校区/高根東小学校(約940m)
- 中学校区/高根中学校(約670m)



