HOME » 中古一戸建て 船橋市松が丘5丁目 U1713
中古一戸建て 船橋市松が丘5丁目 U1713
閑静な住宅街。3方角地の2LDK。
「船橋日大前」駅徒歩24分。閑静な住宅街に位置します。
北東・北西・南西の3方角地。写真でご覧の通り陽当り、開放感良好。令和1年築の2LDKです。
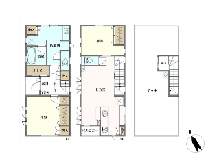
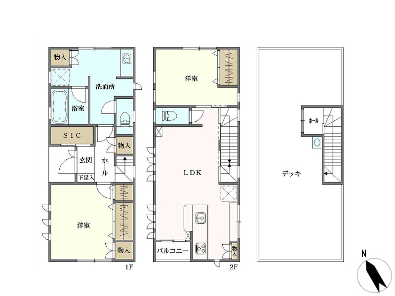
間取図を見てやはり目を引くのはルーフバルコニーでしょうか。水栓も設置されているようですので夏にはお子様プールやBBQも楽しめそうですよ。(BBQに関してはご近所の承諾は取った方が良いですよ。)そして、1階のやたらと広い洗面室。リネン用の収納も設置可能な広さですね。
大手ハウスメーカーの施工。2階LDK部分の窓などを見るとなるほど、建売ではあり得ないような豪華な配置です。
現在売主さんが居住中。なので内見をご希望の場合、予めのお約束が必要となります。まずは現地をご確認。お気軽にお問い合わせください。お待ちしております。
住宅ローンの利用でご購入の場合、月々のお支払い金額は、86,288円です。(借入金額3,200万円、借入期間35年、変動金利2.625%より1.9%優遇後の金利0.725%で計算。)
■ビッグAまで約330m、ファミリーマートまで約160mです。
■古和釜幼稚園まで約560m、ひばり保育園まで約1,470mです。
船橋市 不動産 【家・屋】
※図面と現状が異なる場合は現状を優先します。売却済みの際はご容赦ください。
船橋市 不動産 【家・屋】
物件概要
- 所在地/船橋市松が丘5丁目
- 交通/東葉高速鉄道『船橋日大前』駅徒歩24分
新京成線『高根木戸』駅徒歩27分 - 価格/3,200万円
- 土地面積/84.22㎡
- 私道面積/
- 建物面積/75.21㎡
- 間取り/2LDK+カースペース
- 構造・規模/木造2階建て
- 土地権利/所有権
- 地目/宅地
- 都市計画/市街化区域
- 用途地域/第1種低層住居専用地域
- 建ぺい率/50%
- 容積率/100%
- 築年月/令和1年12月
- 現況/居住中
- 引渡し時期/相談
- 接道状況/北西3.7m公道・北東4.2m私道
南西4.1m私道 - 設備/公営水道・公共下水・オール電化
- 備考/
- 取引態様/媒介
- 小学校区/坪井小学校(約1,190m)
古和釜小学校(約640m) - 中学校区/古和釜中学校(約210m)




