HOME » 新築一戸建て 船橋市栄町1丁目 N3232-2
新築一戸建て 船橋市栄町1丁目 N3232-2
「船橋」駅徒歩24分。全3棟新築現場より3号棟をご紹介。
仲介手数料無料
「船橋」駅徒歩24分。「京成船橋」駅徒歩22分。徒歩5分のところにバス停もありますよ。
この辺に来ますと船橋は港町だったんだなと思い出します。運河沿いをお散歩したり、ちょっと足を伸ばせば夏の花火大会の会場だったり。普通の住宅街とはちょっと異なる風情のある街並みが魅力だったりしますよ。
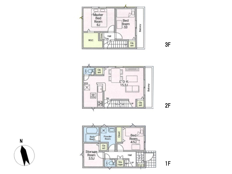
全3棟新築現場。今回紹介しますのは道路から見て左奥側の3号棟。LDK15.3帖の3LDK+1Sです。
そしていつものように住宅性能評価において耐震性、耐風性を含む8項目で最高等級を取得。最近、日本のあちこちで地震が怪しい動きをしております。であれば備えあれば憂いなし。安全なお家をチョイスしておくことは最大の防御策なんだと思います。
3月完成予定。年度内入居できる物件を探している方にはドンピシャのタイミングですよ。まずは現地をご確認。こちらの物件、当社であれば仲介手数料無料で紹介いたします。お気軽にお申し付けくださいませ。
住宅ローンの利用でご購入の場合、月々のお支払い金額は、114,922円です。(借入金額4,088万円、借入期間35年、変動金利2.875%より1.9%優遇後の金利0.975%で計算。)
■生鮮市場TOPまで約1,110m、セブンイレブンまで約430mです。
■船橋幼稚園まで約1,560m、市立千鳥保育園まで1,040mです。
船橋市 不動産 【家・屋】
※図面と現状が異なる場合は現状を優先します。売却済みの際はご容赦ください。
船橋市 不動産 【家・屋】
物件概要
- 所在地/船橋市栄町1丁目
- 交通/総武線『船橋』駅徒歩24分
京成本線『京成船橋』駅徒歩22分 - 価格/4,088万円(税込)
- 土地面積/81.57㎡(24.67坪)
- 私道面積/
- 建物面積/87.06㎡(26.33坪)
- 間取り/3LDK+1S+カースペース
- 構造/木造3階建て
- 土地権利/所有権
- 地目/雑種地
- 都市計画/市街化区域
- 用途地域/準工業地域
- 建ぺい率/60%
- 容積率/160%
- 築年月/令和8年3月完成予定
- 現況/建築中
- 引渡し時期/相談
- 建築確認番号/第KBI-SGM25-10-3974号
- 接道状況/南東4m公道
- 設備/公営水道・都市ガス・公共下水
- 備考/
- 総棟数/3棟
- 今回販売棟数/2棟
- 取引態様/媒介
- 小学校区/南本町小学校(約550m)
- 中学校区/湊中学校(約1,060m)




