HOME » 新築一戸建て 船橋市栄町1丁目 N3229-2
新築一戸建て 船橋市栄町1丁目 N3229-2
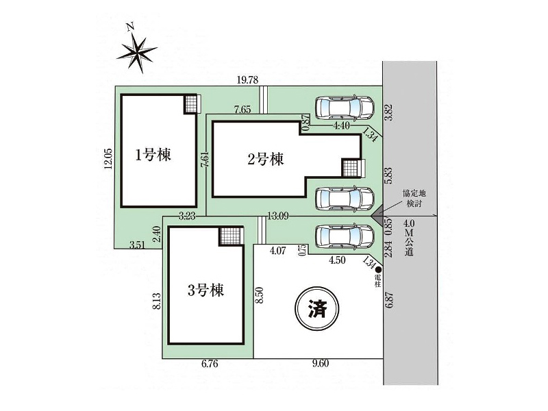
栄町1丁目、全4棟新築現場より3号棟をご紹介。
仲介手数料無料
「船橋」駅徒歩26分。全4棟新築現場。まだ完成前なんですが既に2棟が成約済。こちらの現場、完成が3月予定。年度内入居を予定している方が早め早めに動き出しているようですね。
今回の物件は3号棟。道路から見て左側の奥の棟。LDK18.62帖の3LDKです。
昨今の総武線駅徒歩圏の新築建売の価格は5,000万円台~6,000万円台。それを考えますと今回の物件の3,790万円というのはかなりリーズナブルな設定課と思います。頑張って高めの物件を買うのもいいですが、毎月の返済価格をおさえてその分余暇を充実させるというのもライフプランニングとしては正しい選択のはず。私は... どちらかと言えば後者ですかね~。遊びに出かけるのが大好きなもんですから。
いつものように住宅性能評価において耐震性、耐風性を含む7項目で最高等級を取得。お引っ越し後も安心してお住まい頂けるはずですよ。
まずは現地をご確認。しかもこちらの物件、当社でしたら仲介手数料無料で紹介いたしますよ。ぜひ一度、現地の方もご覧になってみてください。
住宅ローンの利用でご購入の場合、月々のお支払い金額は、106,545円です。(借入金額3,790万円、借入期間35年、変動金利2.875%より1.9%優遇後の金利0.975%で計算。)
■生鮮市場TOPまで約940m、ローソンまで約80mです。
■船橋幼稚園まで約1,700m、市立千鳥保育園まで970mです。
船橋市 不動産 【家・屋】
※図面と現状が異なる場合は現状を優先します。売却済みの際はご容赦ください。
船橋市 不動産 【家・屋】
物件概要
- 所在地/船橋市栄町1丁目
- 交通/総武線『船橋』駅徒歩26分
京成本線『京成船橋』駅徒歩22分 - 価格/3,790万円(税込)
- 土地面積/95.53㎡(28.90坪)
- 私道面積/
- 建物面積/88.18㎡(26.67坪)
- 間取り/3LDK+カースペース
- 構造/木造2階建て
- 土地権利/所有権
- 地目/宅地
- 都市計画/市街化区域
- 用途地域/準工業地域
- 建ぺい率/60%
- 容積率/200%
- 築年月/令和8年3月完成予定
- 現況/建築中
- 引渡し時期/相談
- 建築確認番号/第HPA-25-08681-1号
- 接道状況/東4m公道
- 設備/公営水道・都市ガス・公共下水
- 備考/
- 総棟数/4棟
- 今回販売棟数/2棟
- 取引態様/媒介
- 小学校区/南本町小学校(約620m)
- 中学校区/湊中学校(約1,010m)




