HOME » 新築一戸建て 船橋市海神5丁目 N3220
新築一戸建て 船橋市海神5丁目 N3220
「海神」駅徒歩7分。全7棟新築現場より1号棟をご紹介。
仲介手数料無料
「海神」駅徒歩7分。「新船橋」駅徒歩11分。「東海神」駅も徒歩14分です。3線3駅利用可、生活便利な立地です。
高台の閑静な住宅街、人気のエリアに全3棟の新築現場が登場... と思いきや既に2棟が成約済。やはりさすがの人気ぶりですね。今回は1号棟を紹介いたします。
土地面積34.17坪。このエリア、風致地区と言いまして建ぺい率・容積率が40%・80%と厳しめ、そして隣地境界から1m離して建物を建てなくてはなりません。なので変な圧迫感はありませんよ。名前の通り風通しも良さげです。
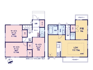
LDK15.75帖の1LDK+3S。間取図にはサービスルーム(納戸)と記載されておりますが、法律的にお隣との間隔、道路からの距離が条件を満たさないと居室と表記出来ないんです。だからって納戸はないよな~と常日頃思うわけなんですが。納戸の中にさらに物入があるって変ですよね。
太陽光パネル設置済。床暖房、食洗機、浴室乾燥機など諸設備も充実。もちろん耐震性や耐風性などの基本性能もしっかりです。堂々完成済。いつでもご案内可能ですよ。お気軽にお申し付けくださいませ。
住宅ローンの利用でご購入の場合、月々のお支払い金額は、148,254円です。(借入金額5,498万円、借入期間35年、変動金利2.625%より1.9%優遇後の金利0.725%で計算。)
■イオンまで約660m、セブンイレブンまで約100mです。
■ひなぎく幼稚園まで約230m、アリスなかよし保育園まで560mです。
船橋市 不動産 【家・屋】
※図面と現状が異なる場合は現状を優先します。売却済みの際はご容赦ください。
船橋市 不動産 【家・屋】
物件概要
- 所在地/船橋市海神5丁目
- 交通/京成本線『海神』駅徒歩7分
東武野田線『新船橋』駅徒歩11分
東葉高速鉄道『東海神』徒歩14分 - 価格/5,498万円(税込)
- 土地面積/112.96㎡(3417坪)
- 私道面積/
- 建物面積/96.04㎡(27.30坪)
- 間取り/1LDK+3S+カースペース
- 構造/木造2階建て
- 土地権利/所有権
- 地目/宅地
- 都市計画/市街化区域
- 用途地域/第1種低層住居専用地域
- 建ぺい率/40%
- 容積率/80%
- 築年月/令和7年10月
- 現況/完成済
- 引渡し時期/相談
- 建築確認番号/第HPA-25-01825-1号
- 接道状況/北3.2m私道
- 設備/公営水道・都市ガス・公共下水
- 備考/
- 総棟数/3棟
- 今回販売棟数/1棟
- 取引態様/媒介
- 小学校区/西海神小学校(約500m)
- 中学校区/海神中学校(約500m)




