HOME » 新築一戸建て 船橋市海神6丁目 N3217-3
新築一戸建て 船橋市海神6丁目 N3217-3
「海神」駅徒歩3分。全3棟新築現場より角地に立地の3号棟をご紹介。
仲介手数料無料
「海神」駅徒歩3分。「西船橋」駅も徒歩16分。海神エリア、昨今では大変貌を遂げつつあるエリアとなっております。駅前商店街は今も昔ながらの風情を残しておりいい味を出していますね。そして船橋IC付近にはここ何年かで大きな商業施設が開店。いきなり生活便利なエリアに躍り出ました。
さて今回紹介しますのはそんなエリアに登場しました全3棟新築現場。角地に位置する3号棟です。他の2棟とは異なり3号棟だけ2階建てなんです。どうしても3階建てに抵抗のある方ってたま~にいらっしゃるんですが、場所はいいんだけど3階建てなのが~、なんてご家族にも自信を持っておススメしちゃいますよ。
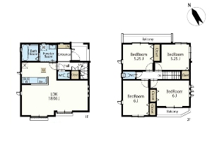
LDK18.06帖の4LDK。2階にすべての居室を持っていった昨今人気のレイアウト。そしていつものように住宅性能評価において耐震性、耐風性を含む7項目で最高等級を取得。ほんと、地震って忘れたころに起こりますよね。最近もまた津波警報出てましたし。なので備えあれば憂いなし。元からお家の性能を上げておくことが一番の対応策かと思います。
いつでもご案内可能です。そしてこちらの物件、当社であれば仲介手数料無料。まずはお気軽にお問い合わせ、お待ちしております。
住宅ローンの利用でご購入の場合、月々のお支払い金額は、153,431円です。(借入金額5,690万円、借入期間35年、変動金利2.625%より1.9%優遇後の金利0.725%で計算。)
■オーケーストアまで約810m、セブンイレブンまで約140mです。
■海神幼稚園まで約340m、そらまめ保育園西船橋まで420mです。
船橋市 不動産 【家・屋】
※図面と現状が異なる場合は現状を優先します。売却済みの際はご容赦ください。
船橋市 不動産 【家・屋】
物件概要
- 所在地/船橋市海神6丁目
- 交通/京成本線『海神』駅徒歩3分
総武線『西船橋』駅徒歩16分 - 価格/5,690万円(税込)
- 土地面積/85.00㎡(25.71坪)
- 私道面積/
- 建物面積/91.00㎡(27.70坪)
- 間取り/4LDK+カースペース
- 構造/木造2階建て
- 土地権利/所有権
- 地目/宅地
- 都市計画/市街化区域
- 用途地域/準住居地域
- 建ぺい率/60%
- 容積率/200%
- 築年月/令和7年7月
- 現況/完成済
- 引渡し時期/相談
- 建築確認番号/第HPA-25-03071-1号
- 接道状況/北東3.8m私道・南東4m私道
- 設備/公営水道・都市ガス・公共下水
- 備考/
- 総棟数/3棟
- 今回販売棟数/3棟
- 取引態様/媒介
- 小学校区/西海神小学校(約810m)
- 中学校区/海神中学校(約1,040m)




