HOME » 新築一戸建て 船橋市新高根5丁目 N3207

新築一戸建て 船橋市新高根5丁目 N3207

「高根公団」駅徒歩9分。土地45.69坪の4LDK。
仲介手数料無料

「高根公団」駅徒歩9分。閑静な住宅街に位置します。ひな段の土地形状のため隣地とは高低差がありおかげで陽当り、開放感良好なんです。

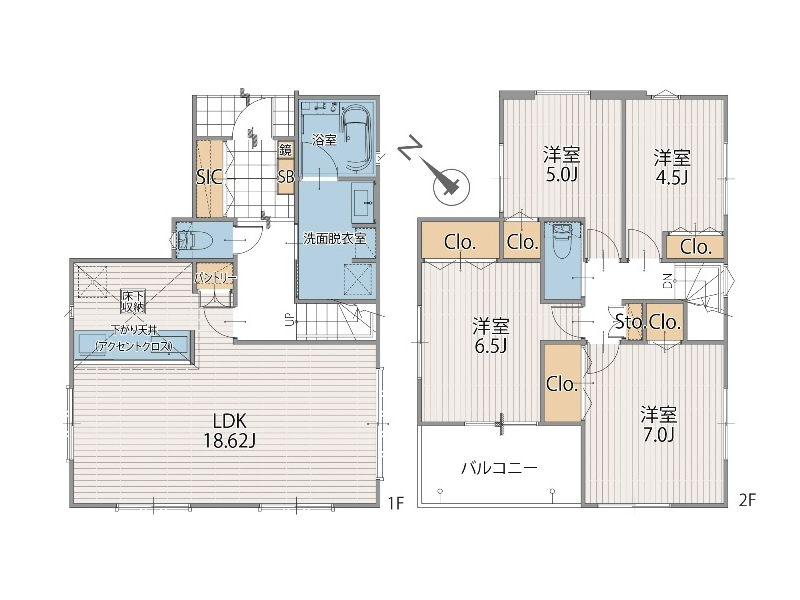
土地面積ゆったり45.69坪。カースペースももちろん2台分。LDK18.62帖の4LDKを紹介いたします。

実はこちらの物件、3月に完成して以来大幅に価格変更しているんです。元の売出価格は4,480万円。そして今。3,580万円。なんと900万円の大幅値下げ。売主さんがこの短期間で大幅値下げをする要因は決算でしょうか。なのでコスパ度、かなり高し... です。

さて間取りですが、まず広~い洗面室が目につきますね。1坪サイズですとリネン置場に困っちゃうもんなんですが、この広さがあれば問題なし。そしてシューズインクローク。これは最近の新築には必須の設備ですね。他にも食洗機や保温浴槽、浴室換気乾燥暖房機など設備の面も充実の一言です。

まずは現地をご確認。いつでもご内見可能です。しかもこちらの物件、当社であれば仲介手数料無料です。お気軽にお声掛け下さいませ。

新築一戸建て 船橋市新高根5丁目 外観写真

新築一戸建て 船橋市新高根5丁目 外観写真

新築一戸建て 船橋市新高根5丁目 外観写真

住宅ローンの利用でご購入の場合、月々のお支払い金額は、96,535円です。(借入金額3,580万円、借入期間35年、変動金利2.625%より1.9%優遇後の金利0.725%で計算。)

■エポカ高根台まで約630m、セブンイレブンまで約460mです。
■木戸脇幼稚園まで約860m、かもめ保育園まで200mです。

船橋市 不動産 【家・屋】

新築一戸建て 船橋市新高根5丁目 間取図
新築一戸建て 船橋市新高根5丁目 配置図

※図面と現状が異なる場合は現状を優先します。売却済みの際はご容赦ください。

船橋市 不動産 【家・屋】

物件概要

  • 所在地/船橋市新高根5丁目
  • 交通/新京成線『高根公団』駅徒歩9分
  • 価格/3,580万円(税込)
  • 土地面積/151.07㎡(45.69坪)
  • 私道面積/
  • 建物面積/101.34㎡(30.65坪)
  • 間取り/4LDK+カースペース2台分
  • 構造/木造2階建て
  • 土地権利/所有権
  • 地目/宅地
  • 都市計画/市街化区域
  • 用途地域/第1種低層住居専用地域
  • 建ぺい率/50%
  • 容積率/100%
  • 築年月/令和7年3月
  • 現況/完成済
  • 引渡し時期/相談
  • 建築確認番号/第KBI-YKH24-10-3594号
  • 接道状況/東4m私道
  • 設備/公営水道・都市ガス・公共下水
  • 備考/
  • 総棟数/1棟
  • 今回販売棟数/1棟
  • 取引態様/媒介
     
  • 小学校区/高根東小学校(約630m)
  • 中学校区/高根中学校(約400m)

船橋市 不動産 【家・屋】

この物件に問い合わせる

このページのトップへ

LINE公式アカウント

友だち追加

友だち登録でお得な情報をGET!

家・屋スタッフブログ