HOME » 新築一戸建て 船橋市松が丘5丁目 N3202
新築一戸建て 船橋市松が丘5丁目 N3202
「船橋日大前」駅徒歩20分。両面道路の3LDK。
仲介手数料無料
「船橋日大前」駅徒歩20分。閑静な住宅街に位置します。南西・北東の両面道路。陽当り、開放感良好な3LDKです。
土地面積たっぷり39.69坪。当然ながらカースペースも2台分を確保。正直駅からの距離があるのでこれはかなり嬉しい要素の一つ。
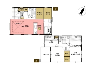
間取りの方ですがLDK20帖の3LDK。2階の北東側の部屋ですがお子様の成長、使い勝手に合わせて2部屋にセパレートできます。すなわち3LDKから4LDKへの変更が可能というわけです。
1階にはシューズインクローク、ファミリークローク、そして洗面室に隣接するリネンスペースと収納たっぷり。2階にも2箇所のウォークインクローゼット。ほとんど収納家具は必要なさそうですよね。
完成は9月を予定。写真はこんな感じなんですが、実際はほぼほぼ完成のはず。近々に写真は再アップ致しますね。まずは現地をご確認。いつでもご案内可能です。お気軽にお申し付けください。
住宅ローンの利用でご購入の場合、月々のお支払い金額は、107,806円です。(借入金額3,980万円、借入期間35年、変動金利2.625%より1.9%優遇後の金利0.725%で計算。)
■ビッグAまで約130m、ファミリーマートまで約540mです。
■古和釜幼稚園まで約190m、ひばり保育園まで1,040mです。
船橋市 不動産 【家・屋】
※図面と現状が異なる場合は現状を優先します。売却済みの際はご容赦ください。
船橋市 不動産 【家・屋】
物件概要
- 所在地/船橋市松が丘5丁目
- 交通/東葉高速鉄道『船橋日大前』駅徒歩20分
- 価格/3,998万円(税込)
- 土地面積/131.22㎡(39.69坪)
- 私道面積/13㎡
- 建物面積/105.39㎡(31.88坪)
- 間取り/3LDK+カースペース2台分
- 構造/木造2階建て
- 土地権利/所有権
- 地目/宅地
- 都市計画/市街化区域
- 用途地域/第1種低層住居専用地域
- 建ぺい率/50%
- 容積率/100%
- 築年月/令和7年9月完成予定
- 現況/建築中
- 引渡し時期/相談
- 建築確認番号/第24UDI1W建11744号
- 接道状況/南西4m私道・北東4m公道
- 設備/公営水道・都市ガス・公共下水
- 備考/
- 総棟数/1棟
- 今回販売棟数/1棟
- 取引態様/媒介
- 小学校区/坪井小学校(約1,250m)
古和釜小学校(約250m) - 中学校区/古和釜中学校(約450m)




