HOME » ステイツ津田沼 船橋市前原東3丁目 M1466
ステイツ津田沼 船橋市前原東3丁目 M1466
「津田沼」駅徒歩17分。嬉しい価格の3LDK。
仲介手数料無料
「津田沼」駅徒歩17分。「前原」駅でしたら徒歩7分。閑静な住環境、平成10年築のマンションです。
イオンまで徒歩11分。毎日のお買物も大変便利ですよ。また近隣に幼稚園、保育園。小さなお子様のいるご家庭にもおススメ。1階部分のお部屋というのも元気なお子様のいるご家庭にはプラス要因ですよね。
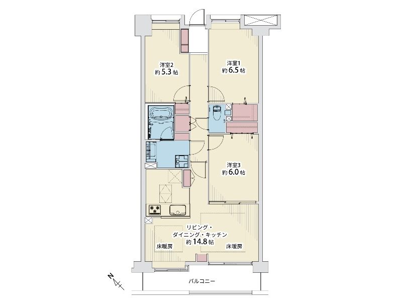
南西向きの3LDK。LDKは14.8帖、各居室も広めで使い勝手はかなり良さそうです。
室内は新規にリノベーション済。システムキッチン、ユニットバス、洗面化粧台、トイレ、給排水管棟水回り部分は新品に交換済。壁・床・天井は総貼り替え。LDKには床暖房も設置済です。
いつでもご内見可能。そしてこちらのマンション、ペットの飼育も可能ですよ。ぜひ一度、現地の方もご覧になってみてください。
住宅ローンの利用でご購入の場合、月々のお支払い金額は、86,535円です。(借入金額3,080万円、借入期間35年、変動金利2.875%より1.9%優遇後の金利0.975%で計算。)
■二宮まで約740m、二宮まで約920mです。
■中台幼稚園まで約320m、ゆめわかば保育園まで約80mです。
船橋市 不動産 【家・屋】
※図面と現状が異なる場合は現状を優先します。売却済みの際はご容赦ください。
船橋市 不動産 【家・屋】
物件概要
- 所在地/船橋市前原東3丁目
- マンション名/ステイツ津田沼
- 交通/総武線『津田沼』駅徒歩17分
京成松戸線『前原』駅徒歩7分 - 価格/3,080万円(税込)
- 専有面積/73.65㎡(壁芯)
- バルコニー面積/8.92㎡
- 間取り/3LDK
- 構造・規模/鉄筋コンクリート造
地下1階付地上5階建て1階部分 - 土地権利/所有権
- 用途地域/第1種中高層住居専用地域
- 築年月/平成10年1月
- 総戸数/41戸
- 管理形態/全部委託
- 管理方式/日勤
- 管理費/17,300円/月
- 修繕積立金/23,250円/月
- 現況/空室
- 引渡し時期/即可
- 駐車場/敷地内に空有り(7,500円~/月)
- 施工会社/(株)大林組
- 管理会社/野村不動産パートナーズ(株)
- 設備/エレベーター・オートロック
- 備考/
- 取引態様/媒介
- 小学校区/二宮小学校(約740m)
- 中学校区/二宮中学校(約920m)



