HOME » 伊藤LKビル 「船橋」駅徒歩1分 T0092
伊藤LKビル 「船橋」駅徒歩1分 T0092
「船橋」北口ロータリー面す最上階の店舗事務所
「船橋」駅北口ロータリー面します。当然、ペデストリアンデッキからも望めます。駅前一等地ですね。
今回の物件は最上階8階部分のロータリー側。すなわち下の階と同じように窓にカッティングシートで店名を入れれば最高の看板になるわけです。
1Fにdocomo、2F以上には不動産会社にクリニック、学習塾などが入っております。エレベーター2基、個別空調、ステータスもありますよね~。
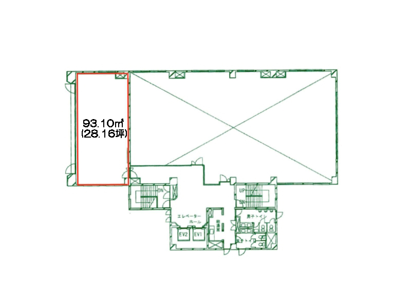
専用面積は28.16坪。もうちょっと広めのお部屋が必要でしたら3階部分に79.71坪のお部屋も同時に募集中ですよ。
まずは現地をご確認。こちらのお部屋はまだ入居中なんですが、3階の方を参考にご覧頂けます。当社からもすぐ。お気軽にお声がけくださいませ。
船橋市 不動産 【家・屋】
※図面と現状が異なる場合は現状を優先します。成約済みの際はご容赦ください。
船橋市 不動産 【家・屋】
物件概要
- 所在地/船橋市本町5丁目
- 建物名/伊藤LKビル
- 交通/総武線『船橋』駅徒歩1分
京成本線『京成船橋』駅徒歩4分
東葉高速鉄道『東海神』駅徒歩10分 - 間取り/間取図参照
- 賃料/542,080円/月(税込)
- 管理費等/102,220円/月(税込)
- 礼金/1ヶ月
- 敷金・保証金/6ヶ月
- 構造・規模/鉄骨鉄筋コンクリート造
地上8階地下1階建て8階部分 - 使用面積/93.10㎡(28.16坪)
- 築年月/平成1年10月
- 契約期間/2年
- 駐車場/
- 現況/賃貸中
- 入居日/2024年5月予定
- 保険等/家財保険要加入
- 更新料/新賃料の0ヶ月
- 設備/エレベーター2基・OAフロア
耐震構造・看板取付スペース
トイレ2ヶ所・温水洗浄便座
男女トイレ別・個別空調・機械警備 - 備考/
- 取引態様/媒介



