HOME » 中古一戸建て 船橋市習志野2丁目 U1749
中古一戸建て 船橋市習志野2丁目 U1749
習志野2丁目。土地60.01坪の2世帯住宅です。
「習志野」駅徒歩27分。「津田沼」駅からバス便も利用可。閑静な住宅街に位置します。
駅から若干距離はあるんですが、結構、この界隈って豪邸が多いんですよね~。お金持ちの方は車で移動するので駅までの近さって関係ないのかもしれませんね。
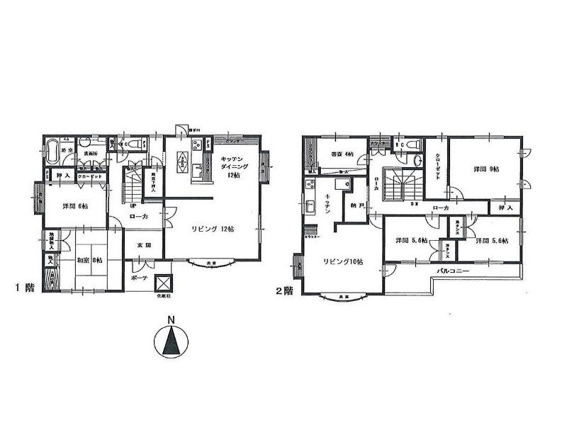
で、今回紹介しますのも負けず劣らずの豪邸です。土地60.01坪、南道路面に付き陽当り良好。2LDK+4LDKの2世帯住宅です。もちろん1世帯で使ったって問題ないわけで。1階LDKをパーティールームや各種教室等なんていかがですか?
もともとが大手ハウスメーカーの施工。築28年ですが、外観のデザイン等見るに全然古さを感じさせませんよね。
現在空家です。お気兼ねなくご内見頂けますよ。お気軽にお申し付けくださいませ。
住宅ローンの利用でご購入の場合、月々のお支払い金額は、125,358円です。(借入金額4,280万円、借入期間35年、変動金利3.125%より1.9%優遇後の金利1.225%で計算。)
■マルエツまで約850m、ファミリーマートまで約260mです。
■船橋小鳩幼稚園まで約540m、市立三山保育園まで約840mです。
船橋市 不動産 【家・屋】
※図面と現状が異なる場合は現状を優先します。売却済みの際はご容赦ください。
船橋市 不動産 【家・屋】
物件概要
- 所在地/船橋市習志野2丁目
- 交通/京成松戸線『習志野』駅徒歩27分
総武線『津田沼』駅バス15分
「習志野原」停歩11分 - 価格/4,280万円
- 土地面積/198.40㎡(60.01坪)
- 私道面積/○○㎡
- 建物面積/195.42㎡(59.11坪)
- 間取り/4LDK+2LDK+カースペース2台分
- 構造・規模/木造2階建て
- 土地権利/所有権
- 地目/宅地
- 都市計画/市街化区域
- 用途地域/工業地域
- 建ぺい率/60%
- 容積率/200%
- 築年月/平成9年7月
- 現況/空家
- 引渡し時期/即可
- 接道状況/南4.5m道路
- 設備/公営水道・都市ガス・公共下水
- 備考/
- 取引態様/媒介
- 小学校区/薬円台南小学校(約1,300m)
三山東小学校(約1,040m) - 中学校区/三山中学校(約760m)



