HOME » 中古一戸建て 船橋市前原東2丁目 U1739
中古一戸建て 船橋市前原東2丁目 U1739
「津田沼」駅徒歩13分。南道路面の2SLDK。
「津田沼」駅徒歩13分。閑静な住宅街に位置します。
南道路面につき陽当り良好。土地ゆったり38.13坪、平成28年築の2SLDKです。
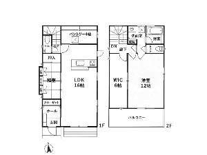
LDK16帖に4帖の和室が隣接。開放すれば20帖の広~いスペース。ウッドデッキもサブリビング的に使えそうですよ。キッチン後ろには4帖大のパントリー付きです。
2階に目を向けますと主寝室これまたゆったり12帖大。そして双方向動線のウォークインクローゼット付き。通常のウォークインクローゼットであればS、すなわちサービスルーム扱いすることはないのですが、廊下からも入れますのでこれは表記にかかわらずS扱いで良いかと。洗面室も双方向動線で使い勝手も良さそうです。ラヴラヴなご夫婦におススメな間取りですね。
現況空家。いつでもお気兼ねなくご内見頂けます。ぜひ一度、現地の方もご覧になってみてください。
住宅ローンの利用でご購入の場合、月々のお支払い金額は、159,958円です。(借入金額5,690万円、借入期間35年、変動金利2.875%より1.9%優遇後の金利0.975%で計算。)
■イオンまで約480m、ミニストップまで約50mです。
■中台幼稚園まで約830m、ゆめわかば保育園まで約580mです。
船橋市 不動産 【家・屋】
※図面と現状が異なる場合は現状を優先します。売却済みの際はご容赦ください。
船橋市 不動産 【家・屋】
物件概要
- 所在地/船橋市前原東2丁目
- 交通/総武線『津田沼』駅徒歩13分
京成松戸線『新津田沼』駅徒歩14分 - 価格/5,690万円
- 土地面積/126.06㎡(38.13坪)
- 私道面積/
- 建物面積/100.19㎡(29.89坪)
- 間取り/2SLDK+カースペース
- 構造・規模/木造2階建て
- 土地権利/所有権
- 地目/宅地
- 都市計画/市街化区域
- 用途地域/第1種住居地域
- 建ぺい率/60%
- 容積率/200%
- 築年月/平成28年5月
- 現況/空家
- 引渡し時期/相談
- 接道状況/南4m公道
- 設備/公営水道・都市ガス・公共下水
- 備考/
- 取引態様/媒介
- 小学校区/前原小学校(約600m)
- 中学校区/前原中学校(約1,880m)



