HOME » 中古一戸建て 船橋市前原西4丁目 U1736
中古一戸建て 船橋市前原西4丁目 U1736
「東船橋」駅徒歩12分。平成28年築の3LDK+1S。
「東船橋」駅徒歩12分。「津田沼」駅徒歩16分。高台の閑静な住宅街に位置します。
南西道路面、道路の向かい側は広~い駐車場です。写真でご覧の通り陽当り申し分なし。平成28年築の3LDL+1Sです。
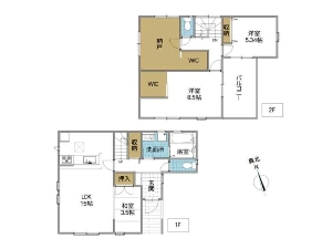
LDK15帖に3.5帖の和室が隣接。この和室、お父さんのごろ寝スペース、お子さんたちの遊び場、冬のお炬燵スペース&鍋などなど。ジャストな広さではありませんか? 2階主寝室は8.5帖、ウォークインクローゼット付きです。北側の納戸(サービスルーム)にもウォークインクローゼット。収納スペースたっぷりで使い勝手も良さそうです。
2026年1月に内装等のリフォーム実施済。システムキッチンには食洗機、LD部分には床暖房付きです。
現況空家。お気兼ねなくご内見頂けますよ。お気軽にお申し付けくださいませ。
住宅ローンの利用でご購入の場合、月々のお支払い金額は、125,942円です。(借入金額4,480万円、借入期間35年、変動金利2.875%より1.9%優遇後の金利0.975%で計算。)
■リブレ京成まで約1,040m、ローソンまで約520mです。
■冨士見第二幼稚園まで約1,090m、市立二宮保育園まで約870mです。
船橋市 不動産 【家・屋】
※図面と現状が異なる場合は現状を優先します。売却済みの際はご容赦ください。
船橋市 不動産 【家・屋】
物件概要
- 所在地/船橋市前原西4丁目
- 交通/総武線『東船橋』駅徒歩12分
総武線『津田沼』駅徒歩16分 - 価格/4,480万円
- 土地面積/94.21㎡(28.49坪)
- 私道面積/
- 建物面積/96.88㎡(29.30坪)
- 間取り/3LDK+1S+カースペース
- 構造・規模/木造2階建て
- 土地権利/所有権
- 地目/宅地
- 都市計画/市街化区域
- 用途地域/第1種中高層住居専用地域
- 建ぺい率/60%
- 容積率/200%
- 築年月/平成28年2月
- 現況/空家
- 引渡し時期/即可
- 接道状況/南西3.64m公道
- 設備/公営水道・都市ガス・公共下水
- 備考/
- 取引態様/媒介
- 小学校区/中野木小学校(約1,020m)
- 中学校区/前原中学校(約1,010m)



