HOME » 中古一戸建て 船橋市南本町 U1728
中古一戸建て 船橋市南本町 U1728
「船橋」駅徒歩16分。事務所付きの4LDK。
「船橋」駅徒歩16分。最近、近隣に大きなショッピングセンターが出来まして生活面でかな~り便利になりました。スーパー、ホームセンター、飲食店。今、熱いエリアです。そして住環境的には閑静。住みやすさもお墨付きですよ。
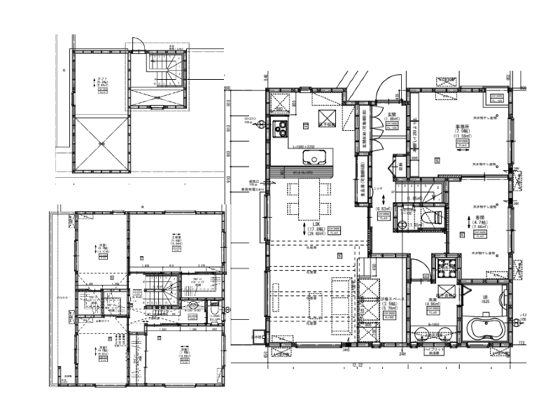
令和5年築の4LDK。ですが1階部分に事務所と客間が付いているんです。もし、事務所が必要ないのでしたら、居室やフリースペースなどとしても使用できそうですよ。
間取図が読み取りづらいので説明していきますがLDKは17.8帖。遊び場スペース3.5帖が隣接。若干底上げになっておりまして下部は収納になっているようです。2階居室は一番広いのが9.6帖、時計回りに7.8帖、6帖、6.7帖。そしてロフトスペースが5.2帖です
収納の多さ、床暖房、洗面化粧台の大きさなどからかな~りこだわって建てられたお家である事が読み取れますね。こういうお家は実際にご覧頂くのが一番です。
現在はまだ売主さんが居住中。なので内見をご希望の方は予めご連絡ください。お問い合わせ、お待ちしております。
住宅ローンの利用でご購入の場合、月々のお支払い金額は、233,331円です。(借入金額8,300万円、借入期間35年、変動金利2.875%より1.9%優遇後の金利0.975%で計算。)
■生鮮市場TOPまで約470m、セブンイレブンまで約180mです。
■船橋幼稚園まで約1,250m、千鳥保育園まで約390mです。
船橋市 不動産 【家・屋】
※図面と現状が異なる場合は現状を優先します。売却済みの際はご容赦ください。
船橋市 不動産 【家・屋】
物件概要
- 所在地/船橋市南本町
- 交通/総武線『船橋』駅徒歩16分
京成本線『京成船橋』駅徒歩15分 - 価格/8,300万円
- 土地面積/154.60㎡(46.76坪)
- 私道面積/
- 建物面積/148.01㎡(44.77坪)
- 間取り/4LDK+事務所+カースペース
- 構造・規模/木造2階建て
- 土地権利/所有権
- 地目/宅地
- 都市計画/市街化区域
- 用途地域/第1種住居地域
- 建ぺい率/60%
- 容積率/200%
- 築年月/令和5年11月
- 現況/居住中
- 引渡し時期/相談
- 接道状況/北側道路
- 設備/
- 備考/
- 取引態様/媒介
- 小学校区/南本町小学校(約200m)
- 中学校区/湊中学校(約990m)



