HOME » 中古一戸建て 船橋市坪井東1丁目 U1716
中古一戸建て 船橋市坪井東1丁目 U1716
「船橋日大前」駅徒歩4分。令和2年築の一戸建て。
仲介手数料無料
「船橋日大前」駅徒歩4分。駅近にして閑静な住宅街に位置します。駅の向こう側に行けば商業施設も充実。生活面もかな~り便利なんですよ。
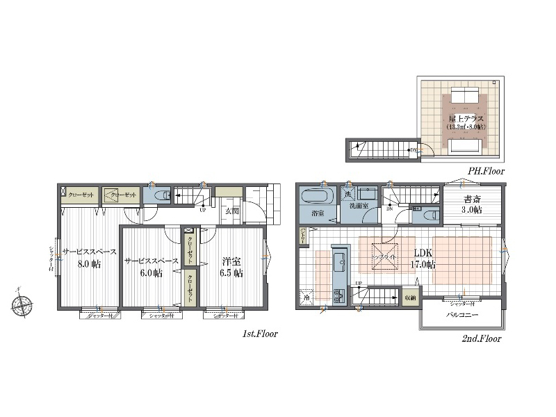
令和2年築。間取りの方は1LDK+2S+書斎。S、すなわちサービススペースというのは隣地境界との距離が短かったりする場合、居室という表記が使えないため使用する名称なんですが、他に良い名称はないものなのでしょうかね~。
2階に配置したLDKは17帖。天井にはトップライト付き。LDKから行ける屋上テラスはサブリビング的に使用できそう。お父さんのプライベートビアガーデン、BBQやグランピング、お子様プールなども楽しめそうですよ。
また外壁にはパワーボードを使用。コンクリートで出来た外壁なので耐火性等はもちろん重厚感も出てきますよね。LDKには床暖房、食洗機、魔法瓶浴槽、EVコンセント、ミストサウナ、宅配BOXなど設備の面も充実の一言ですよ。
現在空家。しかも2025年4月に新規リフォーム済です。いつでもお気兼ねなくご内見頂けます。お気軽にお問い合わせください。
住宅ローンの利用でご購入の場合、月々のお支払い金額は、145,342円です。(借入金額5,390万円、借入期間35年、変動金利2.625%より1.9%優遇後の金利0.725%で計算。)
■生鮮市場TOPまで約530m、セブンイレブンまで約430mです。
■木の実幼稚園まで約910m、アンデルセン保育園まで約780mです。
船橋市 不動産 【家・屋】
※図面と現状が異なる場合は現状を優先します。売却済みの際はご容赦ください。
船橋市 不動産 【家・屋】
物件概要
- 所在地/船橋市坪井東1丁目
- 交通/東葉高速鉄道『船橋日大前』駅徒歩4分
- 価格/5,380万円
- 土地面積/100.00㎡
- 私道面積/
- 建物面積/98.93㎡
- 間取り/1LDK+2S+書斎+カースペース
- 構造・規模/木造2階建て
- 土地権利/所有権
- 地目/宅地
- 都市計画/市街化区域
- 用途地域/第1種低層住居専用地域
- 建ぺい率/50%
- 容積率/100%
- 築年月/令和2年9月
- 現況/空家
- 引渡し時期/即可
- 接道状況/東4m私道
- 設備/公営水道・都市ガス・公共下水
- 備考/
- 取引態様/媒介
- 小学校区/坪井小学校(約680m)
- 中学校区/坪井中学校(約350m)



