HOME » 新築一戸建て 船橋市三山1丁目 N3259
新築一戸建て 船橋市三山1丁目 N3259
「京成大久保」駅徒歩21分。全2棟新築現場より1号棟をご紹介。
「京成大久保」駅徒歩21分。閑静な住宅街、綺麗な街並みが魅力のエリアです。三山エリアは駅からは若干距離があるんですが、商業施設、教育施設が充実。なのでなかなかに生活便利なエリアなんです。ドンキホーテや電機店、しまむらまでありますからね、街の中でほぼほぼ解決しちゃいますね。
さて今回は全2区画の新築現場。北側道路から見て右側の1号棟をご紹介いたします。
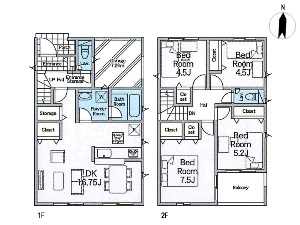
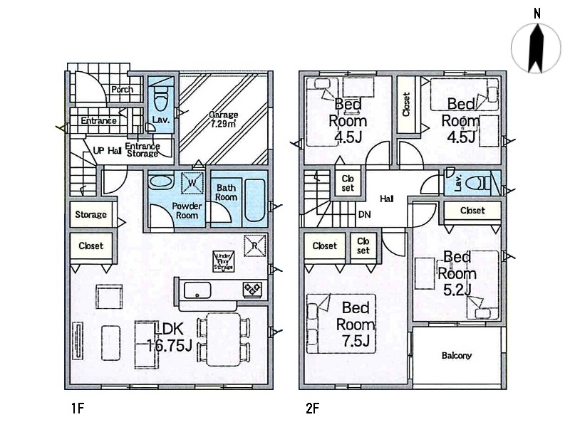
LDK16.75帖の4LDK。2階にすべての居室を持っていった昨今人気のレイアウトです。住宅性能評価において耐震性、耐風性を含む6項目で最高等級を取得。特に耐震性においては制震装置SAFE365を設置しておりますので、購入後も安心してお住まい頂けるはずですよ。そして昨今、といいますかいつの間にやら表示が義務化されてました消エネ性能ラベル。当然ZEH水準をゲットしております。
しかしながら今回一番の注目ポイントは価格でしょうか。3,000万円前半、このエリアではなかなか見かけないレベルですよ。
完成は6月を予定。目指せ、夏休みのお引越しという感じでしょうか。いつでもご案内可能ですのでお気軽にお声がけくださいませ。
住宅ローンの利用でご購入の場合、月々のお支払い金額は、95,244円です。(借入金額3,388万円、借入期間35年、変動金利2.625%より1.9%優遇後の金利0.725%で計算。)
■ヤオコーまで約1,060m、セブンイレブンまで約920mです。
■すずらん幼稚園まで約560m、市立三山保育園まで1,600mです。
船橋市 不動産 【家・屋】
※図面と現状が異なる場合は現状を優先します。売却済みの際はご容赦ください。
船橋市 不動産 【家・屋】
物件概要
- 所在地/船橋市三山1丁目
- 交通/京成本線『京成大久保』駅徒歩21分
- 価格/3,380万円(税込)
- 土地面積/97.74㎡(29.56坪)
- 私道面積/
- 建物面積/98.41㎡(29.76坪)
- 間取り/4LDK+カースペース
- 構造/木造2階建て
- 土地権利/所有権
- 地目/宅地
- 都市計画/市街化区域
- 用途地域/第1種中高層住居専用地域
- 建ぺい率/60%
- 容積率/200%
- 築年月/令和8年6月完成予定
- 現況/建築中
- 引渡し時期/相談
- 建築確認番号/第KBI-SGM25-10-5413号
- 接道状況/北6.5m公道
- 設備/公営水道・都市ガス・公共下水
- 備考/
- 総棟数/2棟
- 今回販売棟数/2棟
- 取引態様/媒介
- 小学校区/三山小学校(約520m)
- 中学校区/三田中学校(約630m)




