HOME » 新築一戸建て 船橋市東船橋1丁目 N3251
新築一戸建て 船橋市東船橋1丁目 N3251
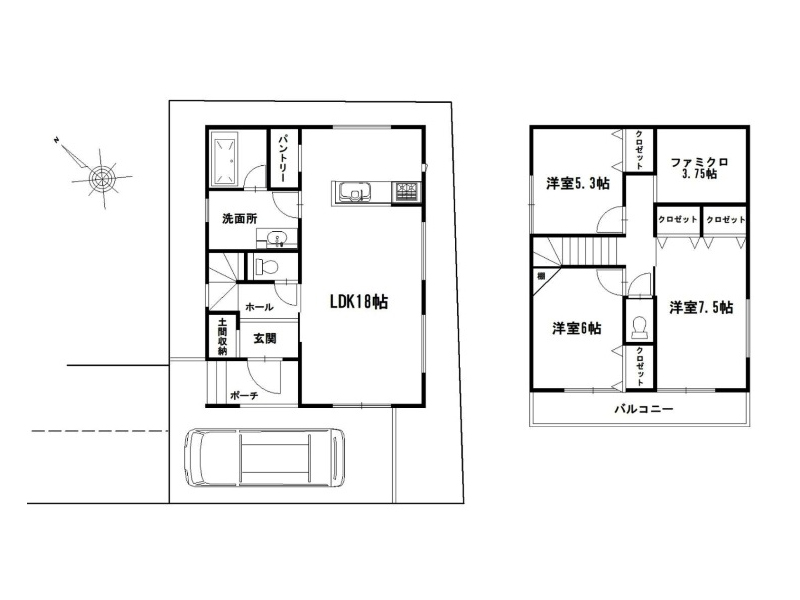
「東船橋」駅徒歩8分。LDK18帖の3LDKです。
仲介手数料無料
「東船橋」駅徒歩8分。全4区画の分譲地、うち1区画が新築建売としての販売になりました。残りの3区画は既に土地として販売済。これから新しいお家が建ち出しますよ。
なかなか物件の出ない峰台小学区。待ち続けていたご家族、探し続けていたご家族も多いかと思います。また近隣にコンビニがあるのもポイント高いですよね。
LDK18帖の3LDK。キッチン横にはパントリー。ゆったりした広さの洗面室、玄関横には土間収納と最近のニーズをしっかり押さえております。2階に目を向けますと何と言っても3.75帖のファミリークローゼットが使い勝手良さそう。これも最近のトレンドですね。
完成は6月を予定。夏休みを利用しての引越しが可能ですね。まずは現地をご確認ください。いつでもご案内可能です。しかもこちらの物件、当社でしたら仲介手数料無料になります。お気軽にお問い合わせくださいませ。
住宅ローンの利用でご購入の場合、月々のお支払い金額は、173,733円です。(借入金額6,180万円、借入期間35年、変動金利2.875%より1.9%優遇後の金利0.975%で計算。)
■ワイズマートまで約730m、セブンイレブンまで約110mです。
■恵楓幼稚園まで約880m、まなびの森保育園東船橋まで400mです。
船橋市 不動産 【家・屋】
※図面と現状が異なる場合は現状を優先します。売却済みの際はご容赦ください。
船橋市 不動産 【家・屋】
物件概要
- 所在地/船橋市東船橋1丁目
- 交通/総武線『東船橋』駅徒歩8分
- 価格/6,180万円(税込)
- 土地面積/137.38㎡
(路地状部分37.36㎡含む) - 私道面積/100.69㎡×1/4
- 建物面積/99.71㎡(30.16坪)
- 間取り/3LDK+カースペース
- 構造/木造2階建て
- 土地権利/所有権
- 地目/宅地
- 都市計画/市街化区域
- 用途地域/第1種低層住居専用地域
- 建ぺい率/50%
- 容積率/100%
- 築年月/令和8年6月完成予定
- 現況/建築中
- 引渡し時期/相談
- 建築確認番号/第25UDI1C建07728号
- 接道状況/北西4m私道
- 設備/公営水道・都市ガス・公共下水
- 備考/
- 総棟数/1棟
- 今回販売棟数/1棟
- 取引態様/媒介
- 小学校区/峰台小学校(約200m)
- 中学校区/宮本中学校(約790m)




