HOME » 新築一戸建て 船橋市栄町1丁目 N3232
新築一戸建て 船橋市栄町1丁目 N3232
「船橋」駅徒歩24分。全3棟新築現場より1号棟をご紹介。
仲介手数料無料
「船橋」駅徒歩24分。バス便もあるんですが、このエリアにお住まいの方は自転車で秋まで行かれる方が多いのでは。駅まで約2km。自転車であれば約10分ですね。もちろんフラットな道のりですからスイスイ行けちゃいますよ。
全3棟新築現場。既に手前の2号棟はご成約済。今回は道路から見て右側奥の1号棟を紹介いたします。
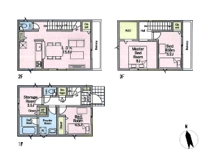
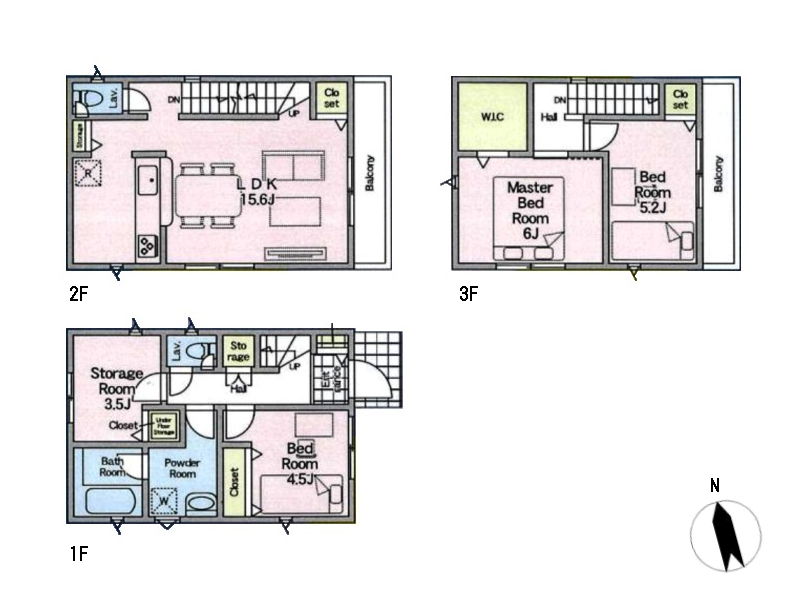
LDK15.6帖、3階建ての3LDK+1S。敷地延長の土地形状ではありますが、向こう側が駐車場なので圧迫感はなさそうですね。王道的な間取りではありますが最近のスタンダードですかね、主寝室にはウォークインクローゼットも配置しておりますよ。
いつものように住宅性能評価において耐震性、耐風性を含む8項目で最高等級を取得。購入後も安心してお住まい頂けるはずです。
完成予定は3月を予定。年度内入居にドンピシャすぎるタイミング。いやギリギリすぎますか、早めに契約して余裕をもってに工事を進めて頂いた方が良いかもです。まずは現地をご確認。いつでもご案内可能です。お気軽にお申し付けくださいませ。
住宅ローンの利用でご購入の場合、月々のお支払い金額は、117,733円です。(借入金額4,188万円、借入期間35年、変動金利2.875%より1.9%優遇後の金利0.975%で計算。)
■生鮮市場TOPまで約1,110m、セブンイレブンまで約430mです。
■船橋幼稚園まで約1,560m、市立千鳥保育園まで1,040mです。
船橋市 不動産 【家・屋】
※図面と現状が異なる場合は現状を優先します。売却済みの際はご容赦ください。
船橋市 不動産 【家・屋】
物件概要
- 所在地/船橋市栄町1丁目
- 交通/総武線『船橋』駅徒歩24分
京成本線『京成船橋』駅徒歩22分 - 価格/4,188万円(税込)
- 土地面積/81.56㎡(24.67坪)
- 私道面積/
- 建物面積/87.06㎡(26.33坪)
- 間取り/3LDK+1S+カースペース
- 構造/木造3階建て
- 土地権利/所有権
- 地目/雑種地
- 都市計画/市街化区域
- 用途地域/準工業地域
- 建ぺい率/60%
- 容積率/160%
- 築年月/令和8年3月完成予定
- 現況/建築中
- 引渡し時期/相談
- 建築確認番号/第KBI-SGM25-10-3972号
- 接道状況/南東4m公道
- 設備/公営水道・都市ガス・公共下水
- 備考/
- 総棟数/3棟
- 今回販売棟数/2棟
- 取引態様/媒介
- 小学校区/南本町小学校(約550m)
- 中学校区/湊中学校(約1,060m)




