HOME » 新築一戸建て 船橋市浜町1丁目 N3231
新築一戸建て 船橋市浜町1丁目 N3231
ららぽーと至近。全2棟新築現場より1号棟をご紹介。
仲介手数料無料
「船橋競馬場」徒歩8分。「南船橋」駅も徒歩13分です。都心へのアクセスから京葉線沿いの物件を探す方って多いんですよね。但し、京葉線は風に弱い。すぐに止まってしまいます。そんな時にもう1つ利用できる路線があると心強いですよね。
加えて今回の物件、何と言ってもららぽーとまで徒歩5分。まさに庭先、まさに冷蔵庫の立地です。おっとお隣のビビットもららぽーとになってたんですね。しかもIKEAやららテラス、LaLaArenaなど今一番熱いエリア。毎日楽しくすごせそうですよ。
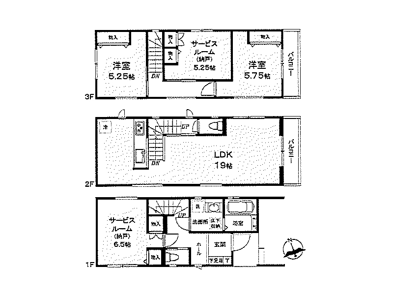
全2棟新築現場。今回は道路から見て右側の1号棟をご紹介。LDK19帖の2LDK+2Sです。キッチンと1Fにつながる階段の配置が面白いですね。お子さんが帰ってきたらお母さんの前を素通りして自分のお部屋にはいけないという家族のコミュニケーションに大重点を置いた設計ではありませんか。
浜町ってかな~り人気が高いんです。しかも戸建てエリアはかなり狭い範囲なので物件が出ずらいエリアでもあります。なので早め早めのアクションがおススメです。
もうそろそろ完成予定です。まずは一度、現地の方もご確認ください。しかもこちらの物件、当社であれば仲介手数料無料。お気軽にお問い合わせくださいませ。
住宅ローンの利用でご購入の場合、月々のお支払い金額は、146,127円です。(借入金額5,198万円、借入期間35年、変動金利2.875%より1.9%優遇後の金利0.975%で計算。)
■ららぽーとTOKYO-BAYまで約380m、ローソンまで約360mです。
■恵楓幼稚園まで約810m、市立浜町保育園まで630mです。
船橋市 不動産 【家・屋】
※図面と現状が異なる場合は現状を優先します。売却済みの際はご容赦ください。
船橋市 不動産 【家・屋】
物件概要
- 所在地/船橋市浜町1丁目
- 交通/京成本線『船橋競馬場』駅徒歩8分
京葉線『南船橋』駅徒歩13分 - 価格/5,198万円(税込)
- 土地面積/66.00㎡(19.96坪)
- 私道面積/
- 建物面積/111.78㎡(33.81坪)
(車庫部分6.22㎡含む) - 間取り/2LDK+2S+カースペース
- 構造/木造3階建て
- 土地権利/所有権
- 地目/宅地
- 都市計画/市街化区域
- 用途地域/第1種住居地域
- 建ぺい率/60%
- 容積率/200%
- 築年月/令和8年1月完成予定
- 現況/建築中
- 引渡し時期/相談
- 建築確認番号/第HPA-25-10763-1号
- 接道状況/東4m公道
- 設備/公営水道・都市ガス・公共下水
- 備考/
- 総棟数/2棟
- 今回販売棟数/2棟
- 取引態様/媒介
- 小学校区/宮本小学校(約1,090m)
- 中学校区/宮本中学校(約1,310m)



