HOME » 新築一戸建て 船橋市浜町1丁目 N3231-2
新築一戸建て 船橋市浜町1丁目 N3231-2
ららぽーと至近。全2棟新築現場より2号棟をご紹介。
仲介手数料無料
浜町。人気ですよね。「船橋競馬場」駅徒歩8分。「南船橋」駅徒歩13分。いざとなったら「船橋」駅や「東船橋」駅だって。そして何より高ポイントなのはららぽーと至近ということ。お買物施設としてはもちろんレストラン街、アミューズメント施設。IKEAもありますし最近ではららテラスやLaLa Arenaなんてコンサートホールまで。(こけら落としはミスチルだったらしいです。)
庭先にこんな施設があれば、お家の中は荷物を極力減らして超シンプルライフなんてのもカッコ良さげです。
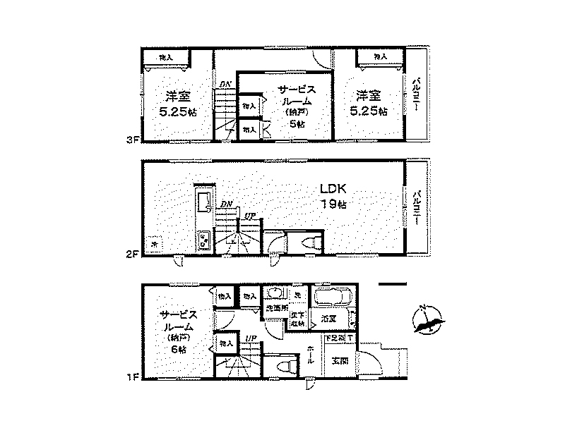
さて全2棟新築現場。今回は道路から見て左側、2号棟を紹介いたします。LDK19帖の2LDK+2S。3階建ての王道間取りながら、使いやすいからこそ王道を名乗れるわけです。
1月中の感性を予定しております。(ギリギリ間に合いますかね?)となりますと年度内入居にバッチリのタイミングですね。まずは現地をご確認。人気のエリアなだけに早め早めのアクションをおススメしておきますね。
住宅ローンの利用でご購入の場合、月々のお支払い金額は、148,938円です。(借入金額5,298万円、借入期間35年、変動金利2.875%より1.9%優遇後の金利0.975%で計算。)
■ららぽーとTOKYO-BAYまで約380m、ローソンまで約360mです。
■恵楓幼稚園まで約810m、市立浜町保育園まで630mです。
船橋市 不動産 【家・屋】
※図面と現状が異なる場合は現状を優先します。売却済みの際はご容赦ください。
船橋市 不動産 【家・屋】
物件概要
- 所在地/船橋市浜町1丁目
- 交通/京成本線『船橋競馬場』駅徒歩8分
京葉線『南船橋』駅徒歩13分 - 価格/5,298万円(税込)
- 土地面積/65.62㎡(19.85坪)
- 私道面積/
- 建物面積/111.57㎡(33.74坪)
(車庫部分6.63㎡含む) - 間取り/2LDK+2S+カースペース
- 構造/木造3階建て
- 土地権利/所有権
- 地目/宅地
- 都市計画/市街化区域
- 用途地域/第1種住居地域
- 建ぺい率/60%
- 容積率/200%
- 築年月/令和8年1月完成予定
- 現況/建築中
- 引渡し時期/相談
- 建築確認番号/第HPA-25-10764-1号
- 接道状況/東4m公道
- 設備/公営水道・都市ガス・公共下水
- 備考/
- 総棟数/2棟
- 今回販売棟数/2棟
- 取引態様/媒介
- 小学校区/宮本小学校(約1,090m)
- 中学校区/宮本中学校(約1,310m)



