HOME » 新築一戸建て 船橋市南本町 N3227
新築一戸建て 船橋市南本町 N3227
「船橋」駅徒歩14分。角地に立地の4LDK。
仲介手数料無料
「船橋」駅徒歩14分。駅からフラットな道のりです。最近、近隣に大きなショッピングモールが出来ましてますます生活便利になりました南本町です。
閑静な住宅街に登場しました全2棟新築現場。今回は角地に位置します1号棟を紹介いたします。
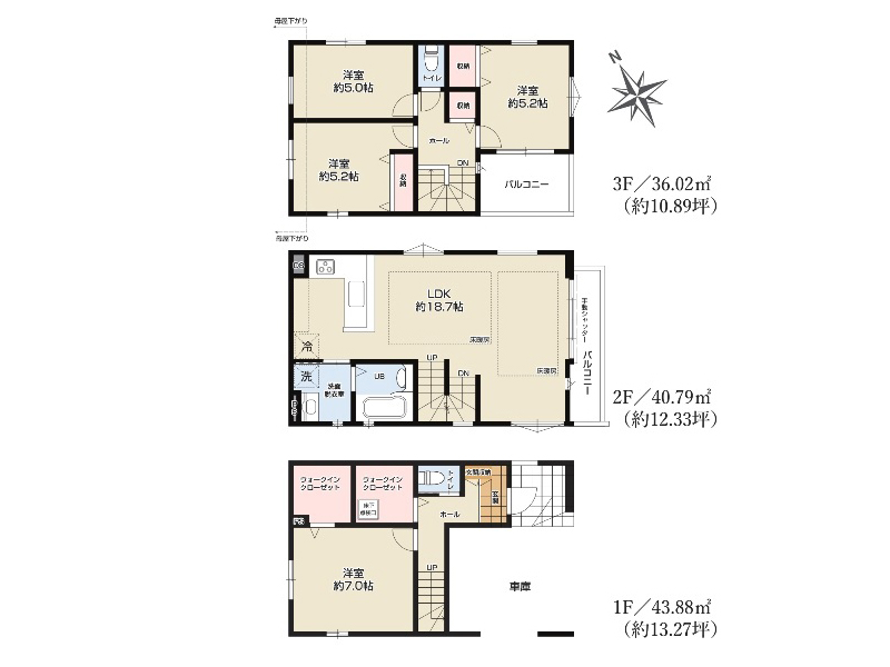
LDK18.7帖の4LDK。1回使うと病みつきになるL字型キッチンが嬉しいですね。そして床暖房を設置。今みたいな寒い時期でもポッカポカにすごせますよ。1階主寝室はゆったり7帖、ウォークインクローゼットはホール部分も含め2箇所も。使い勝手はかなり良さそうですよ。
間もなく完成。新年度目指しての入居にはピッタシのタイミングではないでしょうか。そしてこちらの物件、当社であれば仲介手数料無料でご紹介いたしますよ。まずは一度、現地をご覧になってみてください。お気軽にお声がけくださいませ。
住宅ローンの利用でご購入の場合、月々のお支払い金額は、171,456円です。(借入金額6,099万円、借入期間35年、変動金利2.875%より1.9%優遇後の金利0.975%で計算。)
■生鮮市場TOPまで約860m、セブンイレブンまで約240mです。
■船橋幼稚園まで約1,040m、市立千鳥保育園まで620mです。
船橋市 不動産 【家・屋】
※図面と現状が異なる場合は現状を優先します。売却済みの際はご容赦ください。
船橋市 不動産 【家・屋】
物件概要
- 所在地/船橋市南本町
- 交通/総武線『船橋』駅徒歩14分
京成本線『京成船橋』駅徒歩12分 - 価格/6,099万円(税込)
- 土地面積/66.17(20.01坪)㎡
- 私道面積/セットバック部分7.19㎡
- 建物面積/120.69㎡(36.50坪)
(車庫部分13.15㎡含む) - 間取り/4LDK+カースペース
- 構造/木造3階建て
- 土地権利/所有権
- 地目/宅地
- 都市計画/市街化区域
- 用途地域/第1種住居地域
- 建ぺい率/60%
- 容積率/200%
- 築年月/令和8年1月完成予定
- 現況/建築中
- 引渡し時期/相談
- 建築確認番号/第KBY-YKH25-10-1995号
- 接道状況/南東5.4m公道・北東6m公道
- 設備/公営水道・都市ガス・公共下水
- 備考/
- 総棟数/2棟
- 今回販売棟数/2棟
- 取引態様/媒介
- 小学校区/南本町小学校(約320m)
- 中学校区/湊中学校(約750m)




