HOME » 新築一戸建て 船橋市南本町 N3221
新築一戸建て 船橋市南本町 N3221
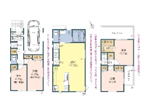
「船橋」駅徒歩12分。嬉しい立地の2LDK+2S。
仲介手数料無料
「船橋」駅徒歩12分。「京成船橋」駅なら徒歩11分。駅までフラットな道のり、そして生活便利な立地です。
このエリア、船橋IC付近に大型ショッピング施設が出来ていきなり買物便利なエリアに変貌を遂げました。スーパーはもちろんホームセンターまで。衣料品店、ダイソー、飲食店もあるんですからほぼ何でもそろっちゃいませんか。
LDK17帖の2LDK+2S。安心の耐震×制震住宅。何でも揺れ幅を最大81%低減してくれるんだとか。最近また地震が頻発しております。地震大国、日本に住む以上、耐震についての備えは必須ですからね。
床暖房、浴室乾燥機、室内物干し、宅配ボックスなど設備の面も充実。地盤保証も20年ついて購入後も安心してお住まい頂けるはずです。
完成は来年の2月を予定。ですがもうそろそろ内見も可能な頃のはずです。ぜひ一度、現地の方もご覧になってみてください。
住宅ローンの利用でご購入の場合、月々のお支払い金額は、157,576円です。(借入金額5,380万円、借入期間35年、変動金利3.125%より1.9%優遇後の金利1.225%で計算。)
■生鮮市場TOPまで約380m、ファミリーマートまで約100mです。
■船橋幼稚園まで約850m、市立千鳥保育園まで270mです。
船橋市 不動産 【家・屋】
※図面と現状が異なる場合は現状を優先します。売却済みの際はご容赦ください。
船橋市 不動産 【家・屋】
物件概要
- 所在地/船橋市南本町
- 交通/総武線『船橋』駅徒歩12分
- 価格/5,380万円
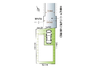
- 土地面積/62.37㎡
- 私道面積/25.07㎡×1/2
- 建物面積/103.67㎡
(車庫部分9.72㎡含む) - 間取り/2LDK+2S+カースペース
- 構造/木造3階建て
- 土地権利/所有権
- 地目/宅地
- 都市計画/市街化区域
- 用途地域/第1種住居地域
- 建ぺい率/60%
- 容積率/160%
- 築年月/令和8年2月
- 現況/完成済
- 引渡し時期/相談
- 建築確認番号/第SJK-KX255623930号
- 接道状況/北4m私道
- 設備/公営水道・都市ガス・公共下水
- 備考/
- 総棟数/1棟
- 今回販売棟数/1棟
- 取引態様/媒介
- 小学校区/南本町小学校(約570m)
- 中学校区/湊中学校(約970m)




