HOME » 新築一戸建て 船橋市松が丘4丁目 N3212-2
新築一戸建て 船橋市松が丘4丁目 N3212-2
「北習志野」駅徒歩15分。オール電化住宅の4LDK。
仲介手数料無料
「北習志野」駅徒歩15分。閑静な住宅街に位置します全4棟新築現場。今回は4号棟を紹介致します。(1、2、3号棟は既にご成約済。)こちらの物件の売主さん、大手家電量販店のグループ会社。なので電気関係の設備の充実ぶりでは群を抜いております。その辺もしっかり確認して下さいね。
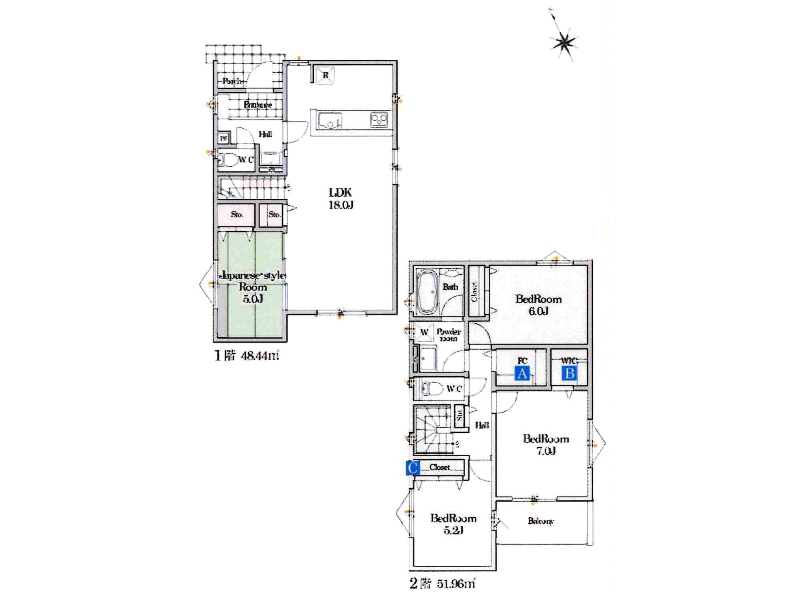
LDK18帖の4LDK。LDKに隣接する和室を開放すればなんと23帖の広大な空間に。水回りは2階に配置。前々からこのサイトでは述べております通り、水回りは2階にあった方が生活動線的には合理的な気がします。お洗濯物を持って階段を上がる必要がなくなります。バスタオル姿で不意のお客さんに遭遇してしまうこともなくなります。朝起きて洗顔してLDKに集合できます... などなど。
そしてこちらの物件、オール電化住宅。現況では太陽光パネルは設置されていないのですが、何でも無料で設置が可能なんだとか。しかも高断熱、省エネ住宅。地球にもお財布にも優しい仕様になっているんですね。その他、宅配ボックス、エコキュート、EV充電コンセントなどなど嬉しい設備が盛りだくさんです。
土地ゆったり36.52坪。カースペースだってしっかり2台分確保しておりますよ。
まずは現地をご確認。いつでもご案内可能です。またこちらの物件、当社であれば仲介手数料無料で紹介致しますよ。お気軽にお申し付け下さいませ。
住宅ローンの利用でご購入の場合、月々のお支払い金額は、120,320円です。(借入金額4,280万円、借入期間35年、変動金利2.875%より1.9%優遇後の金利0.975%で計算。)
■西友まで約970m、セブンイレブンまで約300mです。
■アトリエバレーナ幼稚園まで約540m、市立習志野台第二保育園まで340mです。
船橋市 不動産 【家・屋】
※図面と現状が異なる場合は現状を優先します。売却済みの際はご容赦ください。
船橋市 不動産 【家・屋】
物件概要
- 所在地/船橋市松が丘4丁目
- 交通/東葉高速鉄道・新京成線
『北習志野』駅徒歩15分 - 価格/4,280万円(税込)
- 土地面積/120.74㎡(36.52坪)
- 私道面積/
- 建物面積/100.40㎡(30.37坪)
- 間取り/4LDK+カースペース2台分
- 構造/木造2階建て
- 土地権利/所有権
- 地目/宅地
- 都市計画/市街化区域
- 用途地域/第1種低層住居専用地域
- 建ぺい率/50%
- 容積率/100%
- 築年月/令和7年1月
- 現況/完成済
- 引渡し時期/相談
- 建築確認番号/第24UDI1T建00823号
- 接道状況/北東4.4m私道
- 設備/公営水道・公共下水・オール電化
- 備考/
- 総棟数/4棟
- 今回販売棟数/1棟
- 取引態様/媒介
- 小学校区/坪井小学校(約1,180m)
高根台第二小学校(約740 古和釜小学校(約860m) - 中学校区/古和釜中学校(約1,290m)
高根台中学校(約890m)




