HOME » ルネライラタワー船橋 船橋市本町4丁目 M1476
ルネライラタワー船橋 船橋市本町4丁目 M1476
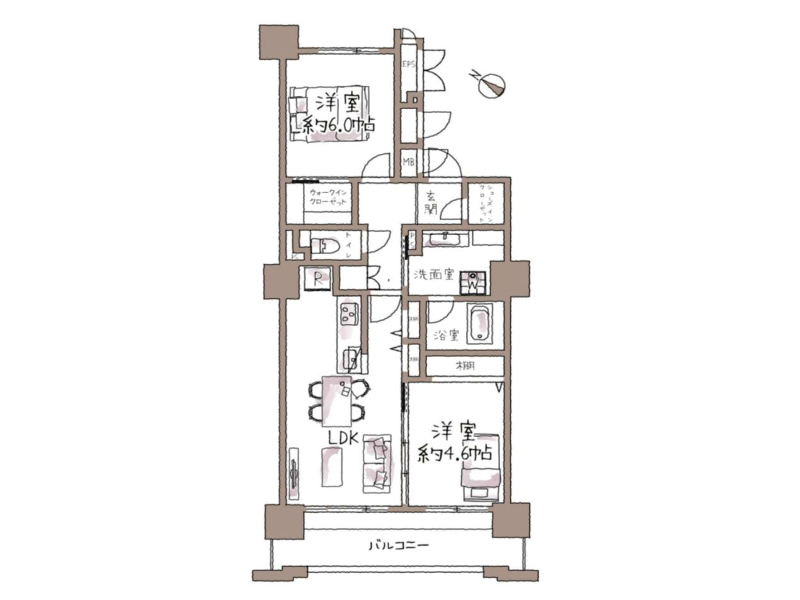
船橋のど真ん中に位置するタワーマンション、14階部分の2LDK。
仲介手数料無料
「船橋」駅徒歩3分。「京成船橋」駅は徒歩1分。まさに船橋のど真ん中です。エントランスを出れば、そこは船橋で一番人通りの多いグルメストリート。静かで落ち着いた住環境をお求めの方にはおススメ致しません。賑やかで派手でアーバンライフを満喫したい方向けの物件と言えるでしょう。
とは言いながらも南西向き14階部分です。お部屋の中では静かにお過ごし頂けるでしょう。そして陽当りも見晴らしも良好です。
室内は新規にリフォーム済。システムキッチン、ユニットバス、トイレ、洗面化粧台、給湯器時になる水回りは新品に交換済。壁・床・天井総貼り替え、建具も交換済です。すなわち室内は新品同様というわけです。
また嬉しいことにペットの飼育も可能。小型犬、猫等合計2頭まで飼育可能ですよ。
現在空室。いつでもご案内可能です。またこちらの物件、家・屋であれば仲介手数料無料! 価格が価格ですから通常ですと仲介手数料は200万円オーバーですよ。なんて太っ腹! お気軽にお問い合わせ下さいませ。
住宅ローンの利用でご購入の場合、月々のお支払い金額は、204,966円です。(借入金額6,998万円、借入期間35年、変動金利3.125%より1.9%優遇後の金利1.225%で計算。)
■ヤマイチまで約210m、セブンイレブンまで約190mです。
■船橋幼稚園まで約340m、市立中央保育園まで約400mです。
船橋市 不動産 【家・屋】
※図面と現状が異なる場合は現状を優先します。売却済みの際はご容赦ください。
船橋市 不動産 【家・屋】
物件概要
- 所在地/船橋市本町4丁目
- マンション名/ルネライラタワー船橋
- 交通/総武線『船橋』駅徒歩3分
京成本線『京成船橋』駅徒歩1分 - 価格/6,998万円(税込)
- 専有面積/58.57㎡(壁芯)
- バルコニー面積/10.25㎡
- 間取り/2LDK
- 構造・規模/鉄筋コンクリート造
地上21階建14階部分 - 土地権利/所有権
- 用途地域/商業地域
- 築年月/平成17年1月
- 総戸数/137戸
- 管理形態/全部委託
- 管理方式/常駐
- 管理費/17,730円/月
- 修繕積立金/25,660円/月
- 現況/空室
- 引渡し時期/即可
- 駐車場/要確認
- 施工会社/三井住友建設
- 管理会社/(株)長谷工コミュニティ
- 設備/エレベーター・オートロック
- 備考/
- 取引態様/媒介
- 小学校区/船橋小学校(約270m)
- 中学校区/船橋中学校(約1,380m)



