HOME » 船橋ヒルズ 船橋市本町7丁目 M1475
船橋ヒルズ 船橋市本町7丁目 M1475
「船橋」駅徒歩8分。南向き1階部分の2LDK。
仲介手数料無料
「船橋」駅徒歩8分。「東海神」駅でしたら徒歩4分。市場通りからちょっと奥にはいります。なので住環境的には閑静と言って差し支えないかと。道路向かい側には業務スーパー、並びにはまいばすけっと、毎日のお買物も大変便利です。
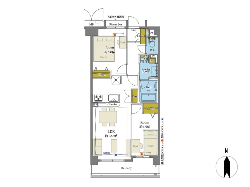
今回紹介しますのは南向き1階部分の2LDKのお部屋。南側は開けてますので陽当りも開放感も良好ですよ。
室内は新規内装リノベーション済。システムキッチン、ユニットバス、洗面化粧台、トイレ等は新品に交換済。壁・床・天井総貼り替え。建具交換済。エアコンも1台新設です。
まずは現地をご確認。いつでもご案内可能です。しかも当社であれば仲介手数料無料で紹介致します。お気軽にお声がけくださいませ。
住宅ローンの利用でご購入の場合、月々のお支払い金額は、131,772円です。(借入金額4,499万円、借入期間35年、変動金利3.125%より1.9%優遇後の金利1.225%で計算。)
■業務スーパーまで約30m、ファミリーマートまで約210mです。
■船橋ひまわり幼稚園まで約1,230m、市立本町保育園まで約520mです。
船橋市 不動産 【家・屋】
※図面と現状が異なる場合は現状を優先します。売却済みの際はご容赦ください。
船橋市 不動産 【家・屋】
物件概要
- 所在地/船橋市本町7丁目
- マンション名/船橋ヒルズ
- 交通/総武線『船橋』駅徒歩8分
東葉高速鉄道『東海神』駅徒歩4分
京成本線『京成船橋』駅徒歩12分 - 価格/4,499万円(税込)
- 専有面積/55.03㎡(壁芯)
- バルコニー面積/6.97㎡
- 間取り/2LDK
- 構造・規模/鉄骨鉄筋コンクリート造
地上10階建て1階部分 - 土地権利/所有権
- 用途地域/第2種住居地域
準住居地域 - 築年月/平成7年3月
- 総戸数/46戸
- 管理形態/全部委託
- 管理方式/巡回
- 管理費/13,200円/月
- 修繕積立金/13,650円/月
- 現況/空室
- 引渡し時期/即可
- 駐車場/敷地内に空有り(13,000円~/月)
- 施工会社/(株)長谷工コーポレーション
- 管理会社/野村不動産パートナーズ(株)
- 設備/エレベーター・オートロック
- 備考/
- 取引態様/媒介
- 小学校区/船橋小学校(約1,020m)
海神小学校(約690m) - 中学校区/船橋中学校(約540m)
海神中学校(約830m)



