HOME » ネオハイツ船橋薬円台公園 船橋市習志野台4丁目 M1467
ネオハイツ船橋薬円台公園 船橋市習志野台4丁目 M1467
「習志野」駅徒歩11分。嬉しい価格の4LDKです。
仲介手数料無料
「習志野」駅徒歩11分。「北習志野」駅も徒歩16分で利用可能です。向かい側は薬円台公園。言わずと知れたこのエリアの少年野球のメッカですね。そして学区の薬円台小学校はスポーツが盛んで人気の小学校。加えて近所には有名なクアパレスというお風呂屋さんもあり、運動好きなご家族には持って来いの住環境なのではないでしょうか。
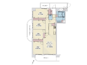
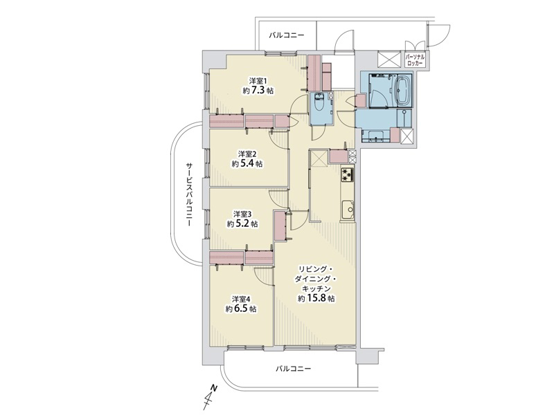
南側8階部分の南西角部屋。陽当りも開放感も良好です。そして専用面積はなんと90.35㎡! 階段がない分、新築建売の4LDKより広~く感じるかもしれませんよ。
もちろん室内は新規リノベーション済。システムキッチン、ユニットバス、洗面化粧台、トイレ、給湯器、配管と気になる水回りは全て新品に交換済。壁・床・天井も総貼り替え済です。
しかし一番注目すべきは、こんな立地、こんな仕様のマンションが価格2,980万円ということ! このご時世では絶対注目のか買う設定ではありませんか。
いつでもご内見可能です。しかもこちらの物件、安いだけではなく当社であれば仲介手数料も無料に! お気軽にお問い合わせくださいませ。
住宅ローンの利用でご購入の場合、月々のお支払い金額は、83,774円です。(借入金額2,980万円、借入期間35年、変動金利2.875%より1.9%優遇後の金利0.975%で計算。)
■ビッグAまで約510m、セブンイレブンまで約50mです。
■大浜幼稚園まで約410m、めぐみ保育園まで約290mです。
船橋市 不動産 【家・屋】
※図面と現状が異なる場合は現状を優先します。売却済みの際はご容赦ください。
船橋市 不動産 【家・屋】
物件概要
- 所在地/船橋市習志野台4丁目
- マンション名/ネオハイツ船橋薬円台公園
- 交通/京成松戸線『習志野』駅徒歩11分
東葉高速鉄道『北習志野』駅徒歩16分 - 価格/2,980万円(税込)
- 専有面積/90.35㎡(壁芯)
- バルコニー面積/16.24㎡
- 間取り/4LDK
- 構造・規模/鉄骨鉄筋コンクリート・
鉄筋コンクリート造
地上9階建て8階部分 - 土地権利/所有権
- 用途地域/第1種中高層住居専用地域
- 築年月/平成9年3月
- 総戸数/89戸
- 管理形態/全部委託
- 管理方式/日勤
- 管理費/11,700円/月
- 修繕積立金/27,110円/月
- 現況/空室
- 引渡し時期/即可
- 駐車場/敷地内に空有り(8,000円~/月)
- 施工会社/東海興業(株)
- 管理会社/大和ライフネクスト(株)
- 設備/エレベーター・オートロック
- 備考/
- 取引態様/媒介
- 小学校区/薬円台小学校(約600m)
- 中学校区/二宮中学校(約1,890m)
習志野台中学校(約1,610m)



