HOME » 一棟売りアパート 船橋市前原西4丁目 B0771
一棟売りアパート 船橋市前原西4丁目 B0771
公園隣接。ナイスロケーションなOC物件です。
「津田沼」駅徒歩11分。閑静あ住宅街に位置します。
平成29年築の賃貸アパート。西側前面が公園なので陽当りも写真の通り。開放感にも優れ、ロケーション的にも入居者の方に喜ばれると思います。昼間は公園で遊ぶお子様たちの声で若干賑やかかもしれませんが、極端な静けさが苦手な人には快い活気なのではないでしょうか。
現在一括借上げ中。一括借上げの継承は引渡し条件として設定されております。ですのでその一括借上げしての年間賃料収入は6,611,760円。表面利回りは5.5%となります。
バストイレ別、独立洗面台、広めの洋室と最近の賃貸市場における人気の要因はしっかり押さえておりますよ。万が一、一括借上げ解約後でも満室稼働していくのは難しいお話ではないと思います。
まずは資料をご請求ください。その後、当社のファイナンシャルプランナーも交え作戦会議を開催いたしましょう。お問い合わせ、お待ちしております。
船橋市 不動産 【家・屋】
※図面と現状が異なる場合は現状を優先します。売却済みの際はご容赦ください。
船橋市 不動産 【家・屋】
物件概要
- 所在地/船橋市前原西4丁目
- 交通/総武線『津田沼』駅徒歩11分
京成松戸線『新津田沼』駅徒歩18分 - 価格/12,000万円
- 土地面積/248.73㎡(75.24坪)
- 私道面積/
- 建物面積/245.94㎡(74.39坪)
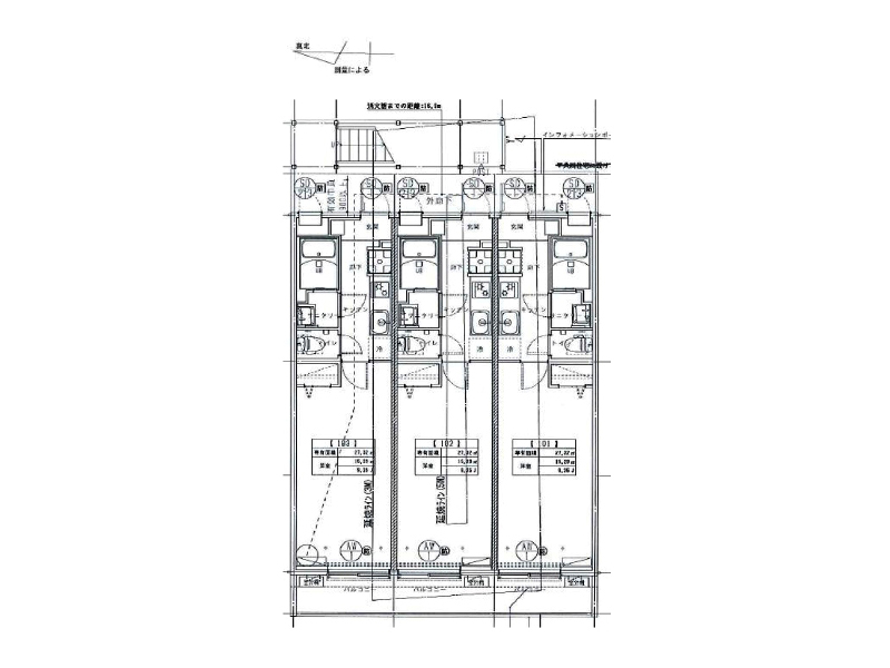
- 間取り/1K×9戸
- 構造・規模/鉄骨造3階建て
- 土地権利/所有権
- 地目/宅地
- 都市計画/市街化区域
- 用途地域/第1種中高層住居専用地域
- 建ぺい率/60%
- 容積率/200%
- 築年月/平成29年7月
- 現況/賃貸中
- 引渡し時期/相談
- 接道状況/南4m公道
- 設備/公営水道・LPガス・公共下水
- 備考/
- 取引態様/媒介



