HOME » アーバンヒルズ船橋(OC) 船橋市湊町2丁目 B0702
アーバンヒルズ船橋(OC) 船橋市湊町2丁目 B0702
表面利回り8%。オーナーチェンジの1K。
仲介手数料無料
当社では投資用としての分譲マンションは紹介しておりません。反論もありますでしょうけど、どう考えても明るい出口が見えません。であれば、違う投資方法を考えた方が良いでしょうから。
しかしながら中古の区分所有となるとだいぶ話は違ってきます。新築で買った物件が大幅に値段を下げ売りに出されるからなんです。但し、やはり出口を予め想定しておくことは必須です。
「船橋」駅徒歩12分。ほぼ真ん前にスーパーもあります。南西向き5階部分、写真でご覧の通り陽当り良好な1Kのお部屋です。
月額賃料収入は50,000円。表面利回りは8%です。この場所でSRCのマンションでオートロック付きで角部屋で。賃貸市場での需要も高いはず。
まずは資料をご請求ください。そして当社のファイナンシャルプランナーも交え作戦会議を開催いたしましょう。
船橋市 不動産 【家・屋】
※図面と現状が異なる場合は現状を優先します。売却済みの際はご容赦ください。
船橋市 不動産 【家・屋】
物件概要
- 所在地/船橋市湊町2丁目
- マンション名/アーバンヒルズ船橋
- 交通/総武線『船橋』駅徒歩12分
京成本線『京成船橋』駅徒歩10分 - 価格/750万円(税込)
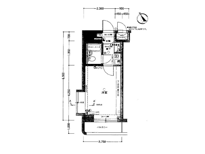
- 専有面積/18.97㎡(壁芯)
- バルコニー面積/2.73㎡
- 間取り/1K
- 構造・規模/鉄骨鉄筋コンクリート造
地上9階建て5階部分 - 土地権利/所有権
- 用途地域/商業地域
- 築年月/平成3年1月
- 総戸数/47戸
- 管理形態/全部委託
- 管理方式/巡回
- 管理費/7,600円/月
- 修繕積立金/12,750円/月
- 現況/賃貸中
- 引渡し時期/相談
- 駐車場/
- 施工会社/武蔵建設(株)
- 管理会社/(株)大京アステージ
- 設備/エレベーター・オートロック
- 備考/
- 取引態様/媒介



